6階は現在募集がありません
2フロア募集区画あり

秋葉原アイマークビル 6階

前の写真 次の写真

物件概要

物件番号

561-00475-7

物件名

秋葉原アイマークビル

所在地

面積

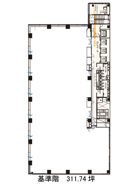
311.74坪

賃料(共益費含)


入居日

募集終了

保証金

礼金

更新料

償却費

竣工

2018年3月

構造

RC

規模

地上12階

トイレ

男女別

空調

エレベーター

セキュリティ

駐車場

耐震

新耐震基準

基準階天井高

2900mm

空室延床面積

623.59坪

最寄駅

情報更新日

2026/01/06

秋葉原アイマークビルのテナント募集中区画

階数 面積 賃料(共益費含む) 保証金 入居可能日 検討リスト 詳細
5 311.74坪 応相談(応相談) 応相談 2026年4月上旬
11 311.85坪 応相談(応相談) 応相談 2026年2月下旬
…新着物件

アクセス

秋葉原アイマークビルの物件情報

秋葉原アイマークビル(台東区台東)は仲御徒町駅(1番出口)から徒歩5分の賃貸オフィスです。
2018年竣工、地上12階建てS造のビルです。ミラーガラスが並び、スタイリッシュな外観をしています。窓面が多く、採光も十分なため、明るい室内になるでしょう。設備仕様として、EV・駐車場・空調・OAフロア・貸室外の男女別トイレがあります。貸室は長方形の無柱空間でオフィス家具のレイアウトがしやすい形をしています。天井高2800㎜で開放感があるでしょう。基準階面積は311.74坪。大型の貸室は、出入口が複数あり、来客用と動線をわけることができます。
秋葉原アイマークビルは仲御徒町駅(1番出口)の他に末広町駅(1番出口)徒歩6分、秋葉原駅(2番出口)徒歩7分で利用も可能です。

近隣のエリア・駅から探す