3階は現在募集がありません

第3松下ビル 3階

前の写真 次の写真

物件概要

物件番号

617-00022-2

物件名

第3松下ビル

所在地

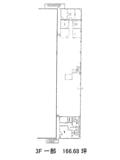
面積

166.68坪

賃料(共益費含)


入居日

募集終了

保証金

礼金

更新料

償却費

竣工

1972年5月

構造

S造

規模

地上3階

トイレ

男女別

空調

エレベーター

セキュリティ

駐車場

耐震

旧耐震基準

基準階天井高

空室延床面積

最寄駅

情報更新日

2020/09/03

第3松下ビルのテナント募集中区画

現在、空室がございません。

アクセス

第3松下ビルの物件情報

近隣のエリア・駅から探す