アネックスビル(TRC内)のテナント募集中区画
| 階数 | 面積 | 賃料(共益費含む) | 保証金 | 入居可能日 | 検討リスト | 詳細 |
|---|---|---|---|---|---|---|
| 4 | 159.25坪 | 応相談(応相談) | 応相談 | 2026年6月上旬 |
…新着物件
アクセス
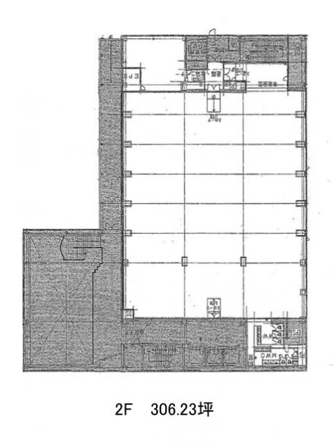
アネックスビル(TRC内)の物件情報
アネックスビル(TRC内)(大田区平和島)は流通センター駅(出口)から徒歩6分の賃貸オフィスです。1991年竣工、地上9階建ての鉄骨造。東京物流センターの敷地内に別館として建てられました。エントランスはガラス天井の明るい吹き抜け空間となっており、乗用3基のエレベーターが設置されています。室内は整形オフィスで、柱がありますが整列しているため、レイアウトの支障にはなりにくいでしょう。男女別トイレ、給湯室等の共用設備は室外に置かれていますので、専有部分を効率良く使用できます。敷地内には郵便局、コンビニ、カフェが立地する利便性の高さも魅力です。周辺には主要道路が多く、高速を使った各所へのアクセスもしやすい環境です。

