3階は現在募集がありません
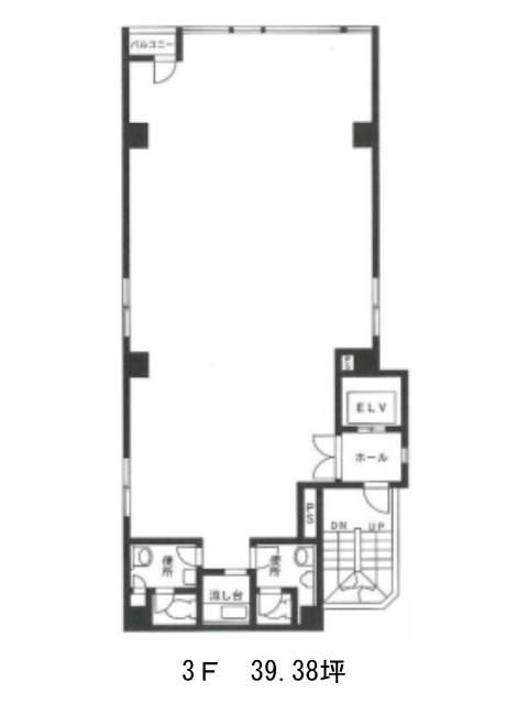
ミヤタビル 3階
物件概要
ミヤタビルのテナント募集中区画
現在、空室がございません。
アクセス
ミヤタビルの物件情報
ミヤタビル(品川区大井)は大井町駅(A2番出口)から徒歩3分の賃貸オフィスです。ミヤタビルは大井町駅(A2番出口)の他に下神明駅(出口)徒歩10分、鮫洲駅(出口)徒歩15分で利用も可能です。

