6階は現在募集がありません
Harbor Oneビル 6階
物件概要
Harbor Oneビルのテナント募集中区画
現在、空室がございません。
アクセス
Harbor Oneビルの物件情報
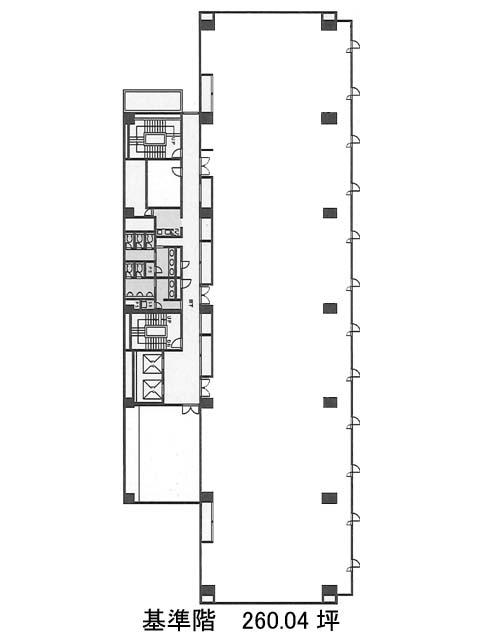
Harbor Oneビル(品川区東品川)は天王洲アイル駅(出口B)から徒歩3分の賃貸オフィスです。2002年竣工、地上6階地下1階建SRC造のビルです。横長の建物で重厚感のある外観をしています。基準階面積は260.04坪。細長い長方形のフロアはレイアウトがしやすいでしょう。オフィスへの出入口が複数あり、来客用と動線を分ける事ができます。設備仕様として、EV・駐車場・機械警備・空調(セントラルと個別の併用)・貸室外の男女別トイレがあります。床はパソコンの配置がしやすいOAフロアを導入しています。Harbor Oneビルは天王洲アイル駅(出口B)の他に新馬場駅(北口)徒歩13分、北品川駅(出口)徒歩15分で利用も可能です。

