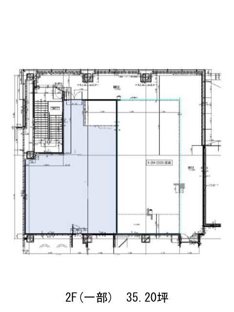
2階は現在募集がありません
品川シーサイドフォレストオーバルガーデン 2階
物件概要
品川シーサイドフォレストオーバルガーデンのテナント募集中区画
現在、空室がございません。
アクセス
品川シーサイドフォレストオーバルガーデンの物件情報
品川シーサイドフォレストオーバルガーデン(品川区東品川)は品川シーサイド駅(出口)から徒歩3分の賃貸オフィスです。品川シーサイドフォレストオーバルガーデンは品川シーサイド駅(出口)の他に青物横丁駅(出口3)徒歩11分、鮫洲駅(出口)徒歩14分で利用も可能です。

