3階は現在募集がありません
大成ビル 3階
物件概要
大成ビルのテナント募集中区画
現在、空室がございません。
アクセス
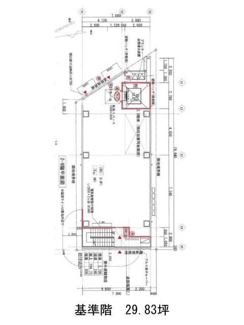
大成ビルの物件情報
大成ビル(品川区南大井)は大森駅(東口)から徒歩3分の賃貸オフィスです。大成ビルは大森駅(東口)の他に大森海岸駅(出口)徒歩8分で利用も可能です。

