7階は現在募集がありません

大成ビル 7階

前の写真 次の写真

物件概要

物件番号

766-00201-5

物件名

大成ビル

所在地

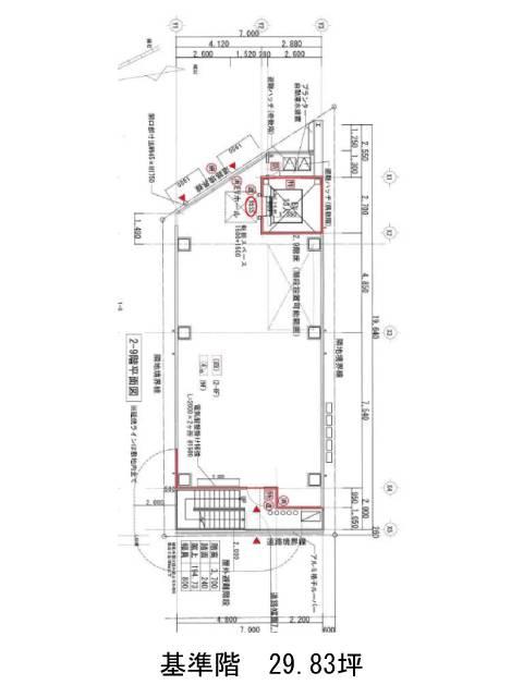
面積

29.83坪

賃料(共益費含)


入居日

募集終了

保証金

礼金

更新料

償却費

竣工

2022年5月

構造

S造

規模

地上10階

トイレ

空調

エレベーター

セキュリティ

駐車場

耐震

新耐震基準

基準階天井高

3100mm

空室延床面積

最寄駅

情報更新日

2024/04/24

大成ビルのテナント募集中区画

現在、空室がございません。

アクセス

大成ビルの物件情報

大成ビル(品川区南大井)は大森駅(東口)から徒歩3分の賃貸オフィスです。
大成ビルは大森駅(東口)の他に大森海岸駅(出口)徒歩8分で利用も可能です。

近隣のエリア・駅から探す