5階は現在募集がありません
音羽プライムビル 5階
物件概要
音羽プライムビルのテナント募集中区画
現在、空室がございません。
アクセス
音羽プライムビルの物件情報
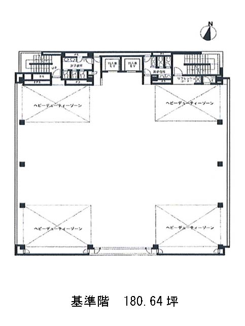
音羽プライムビル(文京区音羽)は護国寺駅(5番出口)から徒歩4分の賃貸オフィスです。2008年竣工の鉄骨造、地上8階、地下1階建てのビルです。音羽通りに面する場所に位置し、外観はガラス張りで視認性が高いです。エレベーターホールは清潔感があり、来客の際に印象が良いでしょう。ビル1階にコンビニがあり、周辺には飲食店も複数あるため、ランチに活用でます。エレベーターは2基設置、男女別トイレ、個別空調、OAフロアです。新耐震基準を満たしているため、安心です。貸室内は正方形の整形オフィスのため、レイアウトを自由に組むことが出来るでしょう。音羽プライムビルは護国寺駅(5番出口)の他に江戸川橋駅(1a番出口)徒歩9分、茗荷谷駅(1番出口)徒歩14分で利用も可能です。

