4階は現在募集がありません

大樹生命文京小日向ビル 4階

前の写真 次の写真

物件概要

物件番号

780-00009-172

物件名

大樹生命文京小日向ビル

所在地

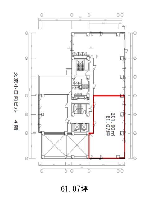
面積

61.08坪

賃料(共益費含)


入居日

募集終了

保証金

礼金

更新料

償却費

竣工

1992年7月

構造

SRC

規模

地上8階/地下1階

トイレ

男女別

空調

個別空調

エレベーター

セキュリティ

駐車場

耐震

新耐震基準

基準階天井高

2450mm

空室延床面積

最寄駅

情報更新日

2023/12/08

大樹生命文京小日向ビルのテナント募集中区画

現在、空室がございません。

アクセス

大樹生命文京小日向ビルの物件情報

大樹生命文京小日向ビル(文京区小日向)は茗荷谷駅(3番出口)から徒歩6分の賃貸オフィスです。
1992年竣工、春日通りに面している鉄骨鉄筋コンクリート造のビルです。地上8階、地下1階建てで外観はタイル張りのシンプルなデザイン、エントランスは石造りの明るく清潔感のある雰囲気です。エレベーター2基設置、OAフロア、トイレ男女別、空調がリニューアル済みです。ビル周辺にはコンビニやスーパー、徒歩圏内に郵便局があり利便性が高いです。貸室内は、ほぼ長方形の整形オフィスのため、レイアウトの自由度も高いです。

近隣のエリア・駅から探す