3階は現在募集がありません
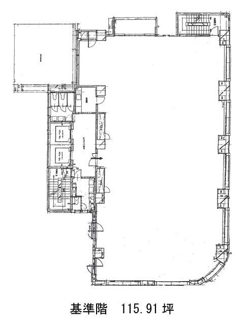
インテリジェントビル湯島イヤサカ 3階
物件概要
インテリジェントビル湯島イヤサカのテナント募集中区画
現在、空室がございません。
アクセス
インテリジェントビル湯島イヤサカの物件情報
インテリジェントビル湯島イヤサカ(文京区湯島)は湯島駅(4番出口)から徒歩1分の賃貸オフィスです。インテリジェントビル湯島イヤサカは湯島駅(4番出口)の他に上野広小路駅(A1番出口)徒歩5分、上野御徒町駅(A4番出口)徒歩5分で利用も可能です。

