7階は現在募集がありません
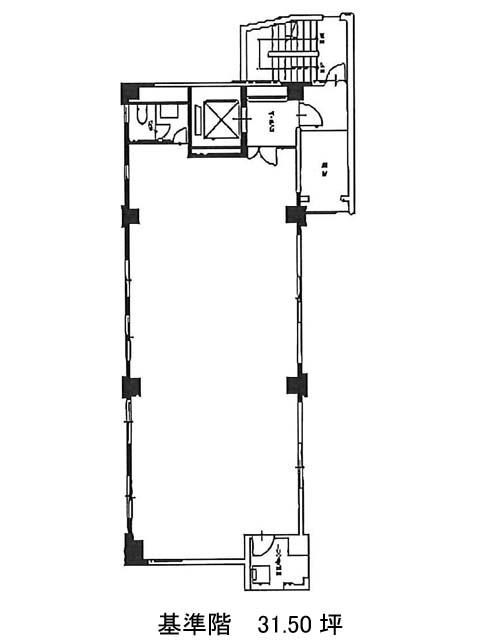
御茶ノ水明神ビル 7階
物件概要
御茶ノ水明神ビルのテナント募集中区画
現在、空室がございません。
アクセス
御茶ノ水明神ビルの物件情報
御茶ノ水明神ビル(文京区湯島)は御茶ノ水駅(聖橋口)から徒歩6分の賃貸オフィスです。御茶ノ水明神ビルは御茶ノ水駅(聖橋口)の他に新御茶ノ水駅(B2番出口)徒歩6分、末広町駅(3番出口)徒歩8分で利用も可能です。

