7階は現在募集がありません

モーリオン湯島 7階

前の写真 次の写真

物件概要

物件番号

786-00037-70

物件名

モーリオン湯島

所在地

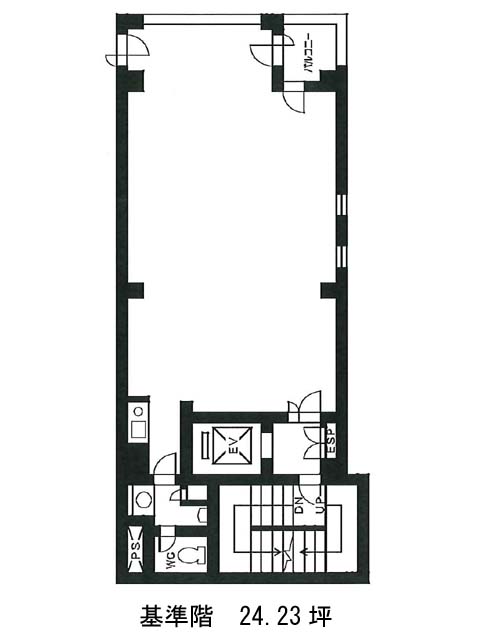
面積

24.23坪

賃料(共益費含)


入居日

募集終了

保証金

礼金

更新料

償却費

竣工

1989年10月

構造

S造

規模

地上8階

トイレ

男女共用

空調

エレベーター

セキュリティ

駐車場

耐震

新耐震基準

基準階天井高

空室延床面積

最寄駅

情報更新日

2022/06/16

モーリオン湯島のテナント募集中区画

現在、空室がございません。

アクセス

モーリオン湯島の物件情報

モーリオン湯島(文京区湯島)は湯島駅(6番出口)から徒歩1分の賃貸オフィスです。
モーリオン湯島は湯島駅(6番出口)の他に末広町駅(4番出口)徒歩6分、上野広小路駅(A1番出口)徒歩6分で利用も可能です。

近隣のエリア・駅から探す