3階は現在募集がありません
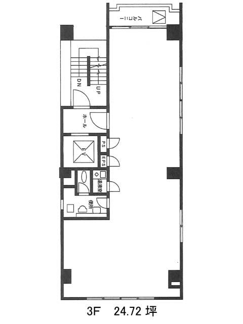
小安ビル 3階
物件概要
小安ビルのテナント募集中区画
現在、空室がございません。
アクセス
小安ビルの物件情報
小安ビル(文京区湯島)は末広町駅(3番出口)から徒歩5分の賃貸オフィスです。
小安ビルは末広町駅(3番出口)の他に御茶ノ水駅(1番出口)徒歩7分、湯島駅(6番出口)徒歩7分で利用も可能です。

