5階は現在募集がありません

エルデ本郷館ビル 5階

前の写真 次の写真

物件概要

物件番号

788-00001-60

物件名

エルデ本郷館ビル

所在地

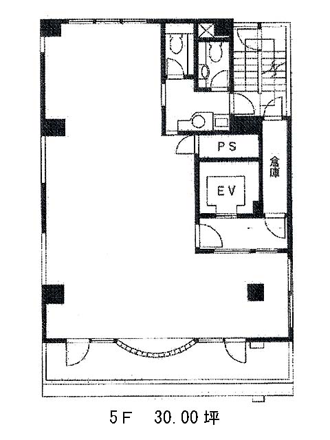
面積

30.00坪

賃料(共益費含)


入居日

募集終了

保証金

礼金

更新料

償却費

竣工

1992年2月

構造

RC

規模

地上7階/地下1階

トイレ

男女別

空調

個別空調

エレベーター

セキュリティ

駐車場

耐震

新耐震基準

基準階天井高

2440mm

空室延床面積

最寄駅

情報更新日

2024/12/27

エルデ本郷館ビルのテナント募集中区画

現在、空室がございません。

アクセス

エルデ本郷館ビルの物件情報

エルデ本郷館ビル(文京区本郷)は本郷三丁目駅(5番出口)から徒歩6分の賃貸オフィスです。
エルデ本郷館ビルは本郷三丁目駅(5番出口)の他に御茶ノ水駅(1番出口)徒歩9分、水道橋駅(A1番出口)徒歩11分で利用も可能です。

近隣のエリア・駅から探す