6階は現在募集がありません
1フロア募集区画あり

お茶の水ウイングビル 6階

前の写真 次の写真

物件概要

物件番号

788-00281-40

物件名

お茶の水ウイングビル

所在地

面積

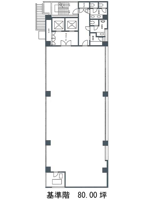
80.00坪

賃料(共益費含)


入居日

募集終了

保証金

礼金

更新料

償却費

竣工

1991年5月

構造

SRC

規模

地上10階

トイレ

男女別

空調

個別空調

エレベーター

セキュリティ

駐車場

耐震

新耐震基準

基準階天井高

空室延床面積

75.00坪

最寄駅

情報更新日

2026/01/09

お茶の水ウイングビルのテナント募集中区画

階数 面積 賃料(共益費含む) 保証金 入居可能日 検討リスト 詳細
5 75.00坪 1,218,222円/月(16,243円/坪) 552万円
…新着物件

アクセス

お茶の水ウイングビルの物件情報

お茶の水ウイングビル(文京区本郷)は本郷三丁目駅(2番出口)から徒歩5分の賃貸オフィスです。
お茶の水ウイングビルは本郷三丁目駅(2番出口)の他に水道橋駅(A6番出口)徒歩6分、御茶ノ水駅(1番出口)徒歩10分で利用も可能です。

近隣のエリア・駅から探す