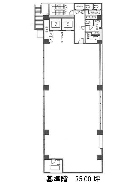
お茶の水ウイングビルのテナント募集中区画
| 階数 | 面積 | 賃料(共益費含む) | 保証金 | 入居可能日 | 検討リスト | 詳細 |
|---|---|---|---|---|---|---|
| 5 | 75.00坪 | 1,218,222円/月(16,243円/坪) | 552万円 | 即 |
…新着物件
アクセス
お茶の水ウイングビルの物件情報
お茶の水ウイングビル(文京区本郷)は本郷三丁目駅(2番出口)から徒歩5分の賃貸オフィスです。お茶の水ウイングビルは本郷三丁目駅(2番出口)の他に水道橋駅(A6番出口)徒歩6分、御茶ノ水駅(1番出口)徒歩10分で利用も可能です。

