10階は現在募集がありません
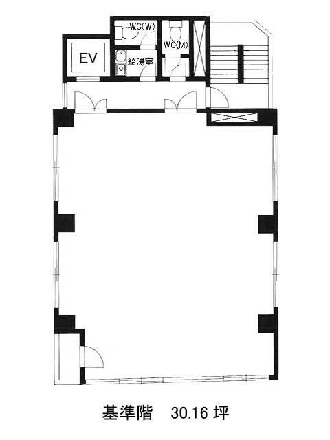
石川ビル 10階
物件概要
石川ビルのテナント募集中区画
現在、空室がございません。
アクセス
石川ビルの物件情報
石川ビル(文京区本郷)は本郷三丁目駅(4番出口)から徒歩4分の賃貸オフィスです。石川ビルは本郷三丁目駅(4番出口)の他に東大前駅(1番出口)徒歩11分、春日駅(A2番出口)徒歩12分で利用も可能です。

