2階は現在募集がありません
Nビル東陽町 2階
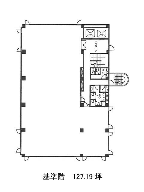
物件概要
Nビル東陽町のテナント募集中区画
現在、空室がございません。
アクセス
Nビル東陽町の物件情報
Nビル東陽町(江東区新砂)は東陽町駅(3番出口)から徒歩8分の賃貸オフィスです。Nビル東陽町は東陽町駅(3番出口)の他に南砂町駅(1番出口)徒歩10分で利用も可能です。

