3階は現在募集がありません

サンイースト辰巳 3階

前の写真 次の写真

物件概要

物件番号

100-00001-60

物件名

サンイースト辰巳

所在地

面積

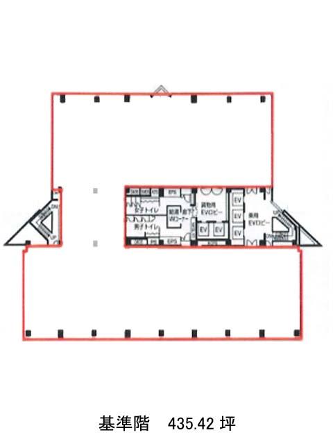
435.42坪

賃料(共益費含)


入居日

募集終了

保証金

礼金

更新料

償却費

竣工

1993年1月

構造

SRC

規模

地上8階

トイレ

男女別

空調

個別空調

エレベーター

セキュリティ

駐車場

耐震

新耐震基準

基準階天井高

2550mm

空室延床面積

最寄駅

情報更新日

2025/03/04

サンイースト辰巳のテナント募集中区画

現在、空室がございません。

アクセス

サンイースト辰巳の物件情報

サンイースト辰巳(江東区辰巳)は東雲駅(A出口)から徒歩8分の賃貸オフィスです。
1993年竣工、地上8階の鉄骨鉄筋コンクリート造で、基準階は約435坪の大型貸しオフィスになります。貸室内は長方形の無柱空間のため、レイアウトの自由度は高いです。ビル外観は大きな窓ガラスが横一列に外壁タイルを挟みながら等間隔で縦に連なっており、遠くからでも視認性は良好です。ビル内に売店、カフェ、近隣にコンビニ、飲食店があり、広い公園もあるため自然を感じながらのリフレッシュも可能です。OAフロア、個別空調、男女別トイレ、エレベーター5基と設備は充実しており、機械警備導入のため安心してお仕事可能です。
サンイースト辰巳は東雲駅(A出口)の他に辰巳駅(b番出口)徒歩9分で利用も可能です。

近隣のエリア・駅から探す