5階は現在募集がありません
イシマビル 5階
物件概要
イシマビルのテナント募集中区画
現在、空室がございません。
アクセス
イシマビルの物件情報
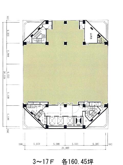
イシマビル(江東区冬木)は門前仲町駅(1番出口)から徒歩6分の賃貸オフィスです。ビル外壁三方が熱線反射ガラス張りの特徴的な外観であり、地上18階建てで近隣に同じぐらいの高さのビルがないため視認性が抜群です。1992年竣工の鉄骨造で、上層階からは東京スカイツリーが見えるなど眺望は良好です。近隣にコンビニが点在しており利便性が高いうえ、深川公園や富岡八幡宮などの緑あふれる環境も身近にあります。専用の機械式駐車場があり、OAフロア、個別空調、男女別トイレと設備面は充実しており、エレベーターは4基設置されています。有人及び機械警備併用でセキュリティ面は万全です。基準階は約160坪で、貸室内は無柱空間でレイアウトがしやすいです。イシマビルは門前仲町駅(1番出口)の他に木場駅(4a番出口)徒歩12分、清澄白河駅(A3番出口)徒歩15分で利用も可能です。

