7階は現在募集がありません
HF門前仲町ビルディング 7階
物件概要
HF門前仲町ビルディングのテナント募集中区画
現在、空室がございません。
アクセス
HF門前仲町ビルディングの物件情報
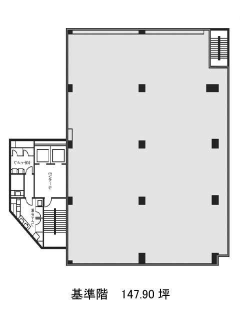
HF門前仲町ビルディング(江東区富岡)は門前仲町駅(1番出口)から徒歩6分の賃貸オフィスです。永代通りの角地に立つ、特徴的なL字型の地上8階・地下1階建ての視認性が良好なビルです。1990年竣工ですが、2011年にエントランスのリニューアルを行い、天井が高く開放的なエントランスは来客に好印象です。近隣にはコンビニ、郵便局などが点在し、非常に利便性の高いエリアとなっています。OAフロア、個別空調、男女別トイレ、エレベーター2基と設備面は充実しており、管理人常駐で機械警備導入のため安心してお仕事可能です。基準階は約147坪で、貸室内中央に柱はありますが、柱を基準に区画を分けて考えればレイアウトの自由度は高いです。HF門前仲町ビルディングは門前仲町駅(1番出口)の他に木場駅(4a番出口)徒歩7分、越中島駅(3番出口)徒歩14分で利用も可能です。

