19階は現在募集がありません
深川ギャザリア タワーN棟 19階
物件概要
深川ギャザリア タワーN棟のテナント募集中区画
現在、空室がございません。
アクセス
深川ギャザリア タワーN棟の物件情報
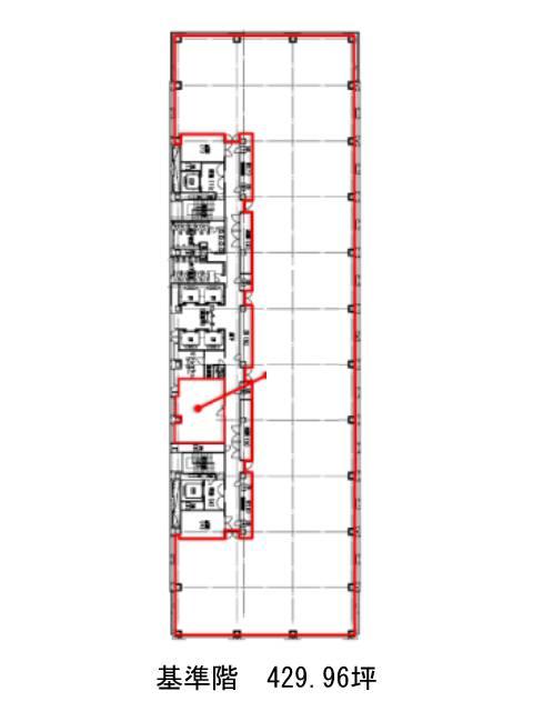
深川ギャザリア タワーN棟(江東区木場)は木場駅(出口)から徒歩3分の賃貸オフィスです。北側出入口正面に設置された噴水と、ガラス張りで天井の高い開放的なエントランスが高級感を演出して来訪者に好印象を与えます。2007年竣工、地上21階・地下1階の鉄骨鉄筋コンクリート造で、敷地内の別棟にはコンビニ、飲食店、スーパーマーケットがあり、敷地内で食事や買い出しも行えるため非常に利便性に優れています。設備としてはOAフロア、セントラル空調、男女別トイレがあり、エレベーターは10基設置とフロアでの待ち時間を最小限にしてくれます。セキュリティは有人・機械警備併用で安心です。基準階は約419坪、貸室内は無柱空間でレイアウトの自由度は高いです。深川ギャザリア タワーN棟は木場駅(出口)の他に門前仲町駅(1番出口)徒歩13分で利用も可能です。

