6階は現在募集がありません
高丸ビル 6階
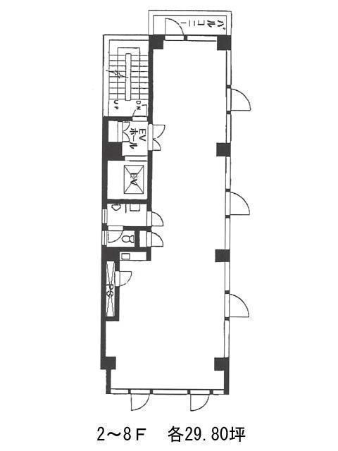
物件概要
高丸ビルのテナント募集中区画
現在、空室がございません。
アクセス
高丸ビルの物件情報
高丸ビル(港区海岸)は日の出駅(東口)から徒歩4分の賃貸オフィスです。高丸ビルは日の出駅(東口)の他に竹芝駅(西口)徒歩8分、浜松町駅(南口1)徒歩11分で利用も可能です。

