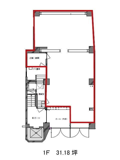
1階は現在募集がありません
ザ・パークレックス虎ノ門 1階
物件概要
ザ・パークレックス虎ノ門のテナント募集中区画
現在、空室がございません。
アクセス
ザ・パークレックス虎ノ門の物件情報
ザ・パークレックス虎ノ門(港区虎ノ門)は虎ノ門駅(2a番出口)から徒歩2分の賃貸オフィスです。ザ・パークレックス虎ノ門は虎ノ門駅(2a番出口)の他に虎ノ門ヒルズ駅(B4番出口)徒歩3分、霞ケ関駅(A13番出口)徒歩6分で利用も可能です。

