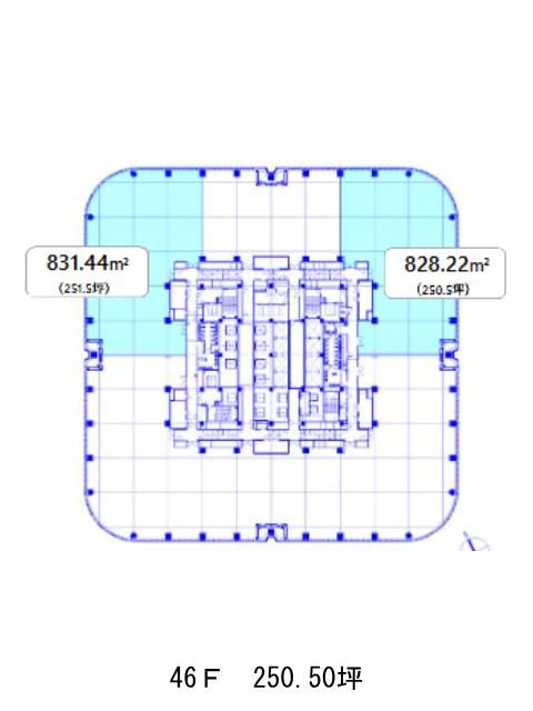
46階は現在募集がありません
麻布台ヒルズ 森JPタワー 46階
物件概要
麻布台ヒルズ 森JPタワーのテナント募集中区画
現在、空室がございません。
アクセス
麻布台ヒルズ 森JPタワーの物件情報
麻布台ヒルズ 森JPタワー(港区麻布台)は神谷町駅(2番出口)から徒歩8分の賃貸オフィスです。当ビルは、都市の新たな象徴として注目を集める大規模複合開発の中核を担う超高層オフィスタワーです。高さ330mを誇るその外観は、圧倒的な存在感と共に、企業のブランド価値を一段と引き上げる佇まい。グランドロビーは天井高も十分に確保された広々とした空間で、来訪者への印象も良好です。
基準階は約1,340坪と都内屈指のスケールを誇り、ワンフロアでの大規模利用から、200坪台での分割利用まで柔軟に対応可能。天井高は3,000mm、整形フロア設計により、開放感とレイアウトの自由度が高く、成長フェーズにある企業やフロア統合を検討する大手企業にも適しています。
館内設備は最新スペックを備え、空調は個別制御に対応。トイレは男女別で共用部に設置されており、清掃管理も行き届いた快適な環境が整っています。先進的なセキュリティと運営体制も魅力で、信頼性の高い執務空間として長期的な入居にも適した物件といえるでしょう。麻布台ヒルズ 森JPタワーは神谷町駅(2番出口)の他に六本木一丁目駅(2番出口)徒歩8分、麻布十番駅(6番出口)徒歩9分で利用も可能です。

