2階は現在募集がありません
虎ノ門中央ビル 2階
物件概要
虎ノ門中央ビルのテナント募集中区画
現在、空室がございません。
アクセス
虎ノ門中央ビルの物件情報
虎ノ門中央ビル(港区虎ノ門)は虎ノ門駅(9番出口)から徒歩1分の賃貸オフィスです。外観は白の吹付けでシンプルにまとめられています。物件は外堀通りに面し、最寄りの虎ノ門駅9番出口からはすぐの距離。1階には人気のステーキチェーンの店舗テナントが入居中ですので、物件を示す際の目印にもなるでしょう。
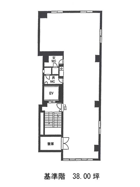
基準となるフロアは40坪弱で、執務空間はL字型に近い間取りです。トイレは男女別で室内に設けられています。
虎ノ門中央ビルは虎ノ門駅のほかに、霞が関駅と内幸町駅が徒歩圏内ですので、地下鉄線の利用に便利でしょう。近隣には銀行支店もございますので、経理関係の作業が円滑に行えそうです。虎ノ門中央ビルは虎ノ門駅(9番出口)の他に霞ケ関駅(C2番出口)徒歩4分、虎ノ門ヒルズ駅(B4番出口)徒歩5分で利用も可能です。

