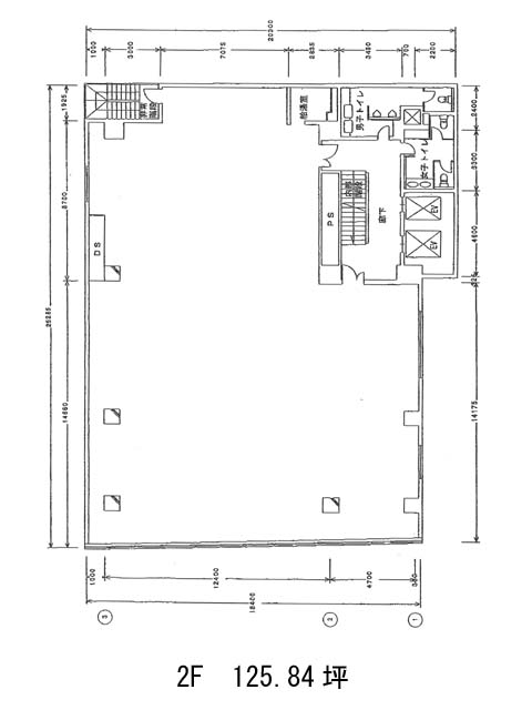
2階は現在募集がありません
田中田村町ビル 2階
物件概要
田中田村町ビルのテナント募集中区画
現在、空室がございません。
アクセス
田中田村町ビルの物件情報
田中田村町ビル(港区新橋)は内幸町駅(A1番出口)から徒歩2分の賃貸オフィスです。田中田村町ビルは内幸町駅(A1番出口)の他に新橋駅(日比谷口)徒歩5分、虎ノ門ヒルズ駅(B4番出口)徒歩7分で利用も可能です。

