7階は現在募集がありません
ランディック第3新橋ビル 7階
物件概要
ランディック第3新橋ビルのテナント募集中区画
現在、空室がございません。
アクセス
ランディック第3新橋ビルの物件情報
ランディック第3新橋ビル(港区新橋)は内幸町駅(A1番出口)から徒歩1分の賃貸オフィスです。
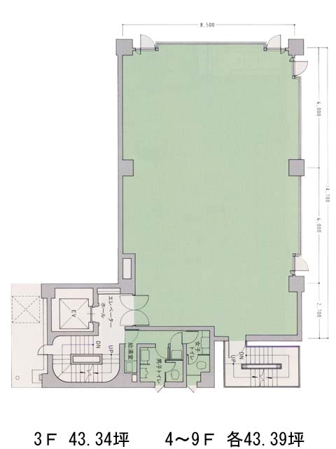
外観は全体的にグレーを基調とした色合いで、とてもシンプルなデザインとなっております。基準階は約43坪あり、室内は長方形の整形オフィスのため、効率の良いレイアウトが組めそうです。ビル内にはOAフロアが備えられており、トイレは男女別となっております。周辺にはコンビニや飲食店、郵便局、銀行などが複数あるためとても利便性が高いです。またビルの1階にも飲食店が入っているため、休憩時などに活用しやすいでしょう。
ランディック第3新橋ビルは内幸町駅(A1番出口)の他に新橋駅(日比谷口)徒歩4分、虎ノ門駅(9番出口)徒歩7分で利用も可能です。

