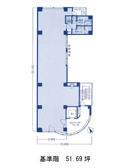
8階は現在募集がありません
新橋NFビル 8階
物件概要
新橋NFビルのテナント募集中区画
現在、空室がございません。
アクセス
新橋NFビルの物件情報
新橋NFビル(港区新橋)は新橋駅(7番出口)から徒歩1分の賃貸オフィスです。新橋NFビルは新橋駅(7番出口)の他に内幸町駅(A2番出口)徒歩3分、汐留駅(3番出口)徒歩8分で利用も可能です。

