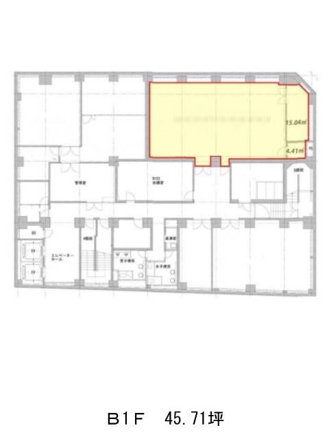
地下1階は現在募集がありません
航空会館 地下1階
物件概要
航空会館のテナント募集中区画
現在、空室がございません。
アクセス
航空会館の物件情報
航空会館(港区新橋)は内幸町駅(A2番出口)から徒歩1分の賃貸オフィスです。外観は全体的に明るい色合いで、デザイン性が高いです。エントランスホールやエレベーターホールは広々としており、清潔感があります。また周辺には、コンビニや飲食店、郵便局、銀行などがあるため、利便性が高いです。ビル内にはOAフロアが備えられており、トイレは男女別となっております。駐車場があるため、社用車を使う場合も便利です。セキュリティは機械警備と有人警備の両方を導入しておりますので、安心です。航空会館は内幸町駅(A2番出口)の他に新橋駅(7番出口)徒歩4分、日比谷駅(A13番出口)徒歩7分で利用も可能です。

