6階は現在募集がありません
1フロア募集区画あり

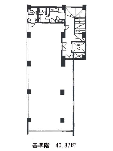
末吉ビル 6階

前の写真 次の写真

物件概要

物件番号

130-00412-50

物件名

末吉ビル

所在地

面積

40.87坪

賃料(共益費含)


入居日

募集終了

保証金

礼金

更新料

償却費

竣工

1964年3月

構造

RC

規模

地上8階/地下1階

トイレ

男女別

空調

個別空調

エレベーター

セキュリティ

駐車場

耐震

旧耐震基準

基準階天井高

空室延床面積

40.87坪

最寄駅

情報更新日

2025/11/17

末吉ビルのテナント募集中区画

階数 面積 賃料(共益費含む) 保証金 入居可能日 検討リスト 詳細
4 40.87坪 764,269円/月(18,700円/坪) 694万円
…新着物件

アクセス

末吉ビルの物件情報

末吉ビル(港区新橋)は新橋駅(日比谷口)から徒歩3分の賃貸オフィスです。
新橋エリアならではの雰囲気が感じられる赤レンガ通りの角地に立地する本物件。シルバーパネル張りの外観は、すっきりとした印象を与えてくれます。基準階は約41坪で、柱の配置には多少留意が必要ですが、全体としては整形な間取り。OAフロア仕様のため、一般的なオフィス利用に適しています。また、募集タイミングによっては店舗用途も相談可能となっており、柔軟な活用が検討できる点もポイントです。
周囲には飲食店やコンビニ、カフェなどが充実し、ランチや打ち合わせにも便利な環境。ビジネス街としての活気がありつつ、利便性も高い新橋エリアならではの働きやすさが感じられる立地です。
末吉ビルは新橋駅(日比谷口)の他に内幸町駅(A1番出口)徒歩4分、虎ノ門ヒルズ駅(B4番出口)徒歩9分で利用も可能です。

近隣のエリア・駅から探す