2階は現在募集がありません
新橋内田ビル 2階
物件概要
新橋内田ビルのテナント募集中区画
現在、空室がございません。
アクセス
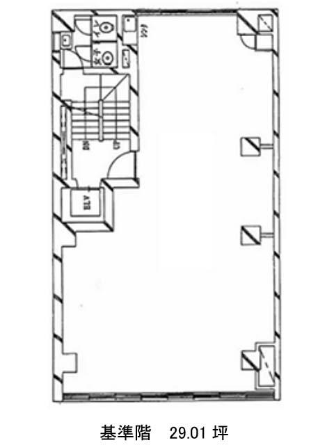
新橋内田ビルの物件情報
新橋内田ビル(港区新橋)は新橋駅(7番出口)から徒歩3分の賃貸オフィスです。新橋内田ビルは新橋駅(7番出口)の他に内幸町駅(A2番出口)徒歩3分、日比谷駅(A13番出口)徒歩8分で利用も可能です。

