5階は現在募集がありません
新橋INビル 5階
物件概要
新橋INビルのテナント募集中区画
現在、空室がございません。
アクセス
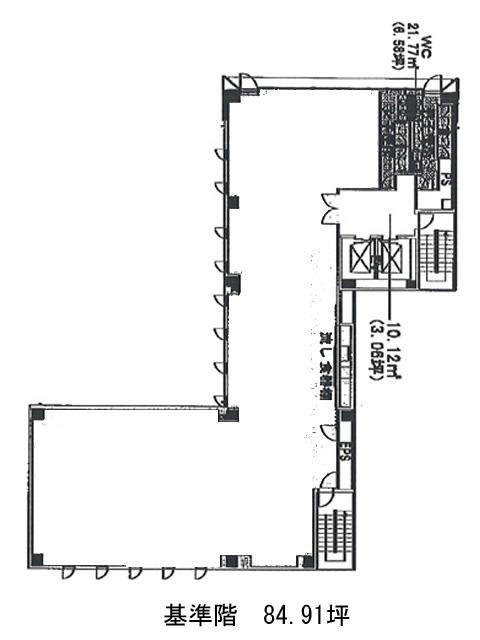
新橋INビルの物件情報
新橋INビル(港区新橋)は内幸町駅(A1番出口)から徒歩2分の賃貸オフィスです。竣工2006年の物件ということもあり、建物自体が比較的綺麗です。外観はガラス張りで、とてもスタイリッシュな印象があります。エントランスホールやエレベーターホールはとても広々としていて、開放感と清潔感があります。ビル内にはOAフロアが備えられており、トイレは男女別となっております。駐車場もあるため、社用車を使う場合も便利です。また周辺にはコンビニや飲食店などが複数あるため、ランチも楽しめるでしょう。新橋INビルは内幸町駅(A1番出口)の他に新橋駅(日比谷口)徒歩4分、虎ノ門駅(9番出口)徒歩7分で利用も可能です。

