10階は現在募集がありません
A-PLACE新橋駅前 10階
物件概要
A-PLACE新橋駅前のテナント募集中区画
現在、空室がございません。
アクセス
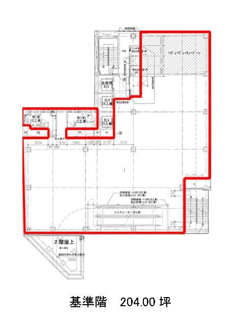
A-PLACE新橋駅前の物件情報
A-PLACE新橋駅前(港区新橋)は新橋駅(5番出口)から徒歩2分の賃貸オフィスです。A-PLACE新橋駅前は新橋駅(5番出口)の他に内幸町駅(A2番出口)徒歩5分、汐留駅(3番出口)徒歩7分で利用も可能です。

