5階は現在募集がありません
杉村ビル 5階
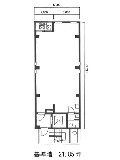
物件概要
杉村ビルのテナント募集中区画
現在、空室がございません。
アクセス
杉村ビルの物件情報
杉村ビル(港区新橋)は内幸町駅(A2番出口)から徒歩2分の賃貸オフィスです。
杉村ビルは内幸町駅(A2番出口)の他に新橋駅(7番出口)徒歩3分、虎ノ門駅(9番出口)徒歩7分で利用も可能です。

