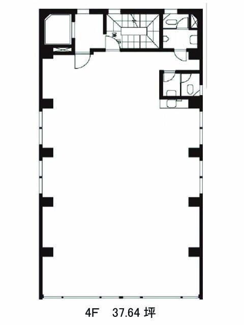
4階は現在募集がありません
不二ビルディング 4階
物件概要
不二ビルディングのテナント募集中区画
現在、空室がございません。
アクセス
不二ビルディングの物件情報
不二ビルディング(港区西新橋)は内幸町駅(A4a番出口)から徒歩2分の賃貸オフィスです。外堀通りから少し中に入った立地の貸事務所ビル。外観はダークブラウンを基調としたシンプルなデザインです。階段を登った先にエントランスが設けられていますので、重厚感があります。貸室サイズはフロアによって異なり、それぞれ約25~45坪の規模感です。
物件は内幸町駅A4出入口から程近い立地。また、虎ノ門駅や新橋駅も徒歩圏内ですので、交通利便性良好です。都内各所へ動きやすい環境と言えるでしょう。不二ビルディングは内幸町駅(A4a番出口)の他に虎ノ門駅(9番出口)徒歩5分、新橋駅(8番出口)徒歩6分で利用も可能です。

