4階は現在募集がありません
日土地西新橋ビル 4階
物件概要
日土地西新橋ビルのテナント募集中区画
現在、空室がございません。
アクセス
日土地西新橋ビルの物件情報
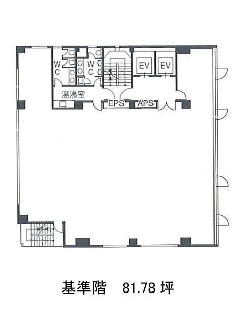
日土地西新橋ビル(港区西新橋)は内幸町駅(A4a番出口)から徒歩2分の賃貸オフィスです。外観は全体的に赤茶の大理石をベースに、ガラス張りが美しくとても綺麗です。エントランスホールやエレベーターホールは高級感があり、とても落ち着いた空間となっております。基準階は約82坪あり、室内は整形をしているため、比較的レイアウトは組みやすいでしょう。ビル内にはOAフロアが備えられており、トイレは男女別となっております。また周辺にはコンビニや飲食店、郵便局、銀行などがあるためとても利便性が高いです。日土地西新橋ビルは内幸町駅(A4a番出口)の他に虎ノ門駅(9番出口)徒歩5分、新橋駅(8番出口)徒歩6分で利用も可能です。

