日土地西新橋ビルのテナント募集中区画
| 階数 | 面積 | 賃料(共益費含む) | 保証金 | 入居可能日 | 検討リスト | 詳細 |
|---|---|---|---|---|---|---|
| 3 | 82.19坪 | 応相談(応相談) | 応相談 | 2026年2月上旬 |
…新着物件
アクセス
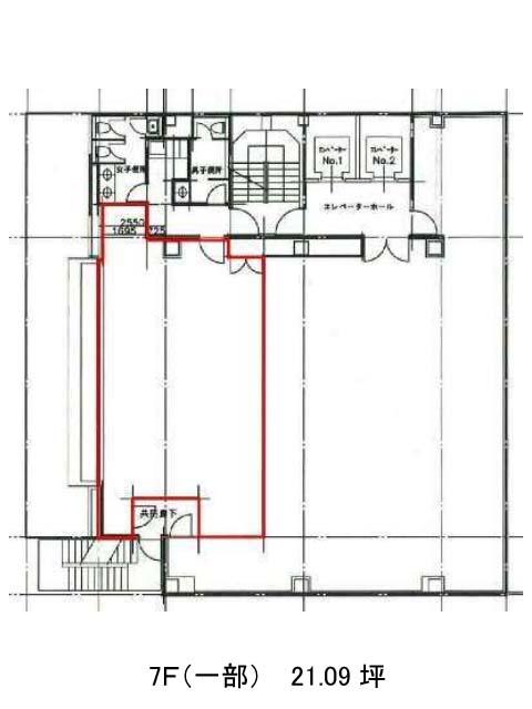
日土地西新橋ビルの物件情報
日土地西新橋ビル(港区西新橋)は内幸町駅(A4a番出口)から徒歩2分の賃貸オフィスです。外観は全体的に赤茶の大理石をベースに、ガラス張りが美しくとても綺麗です。エントランスホールやエレベーターホールは高級感があり、とても落ち着いた空間となっております。基準階は約82坪あり、室内は整形をしているため、比較的レイアウトは組みやすいでしょう。ビル内にはOAフロアが備えられており、トイレは男女別となっております。また周辺にはコンビニや飲食店、郵便局、銀行などがあるためとても利便性が高いです。日土地西新橋ビルは内幸町駅(A4a番出口)の他に虎ノ門駅(9番出口)徒歩5分、新橋駅(8番出口)徒歩6分で利用も可能です。

