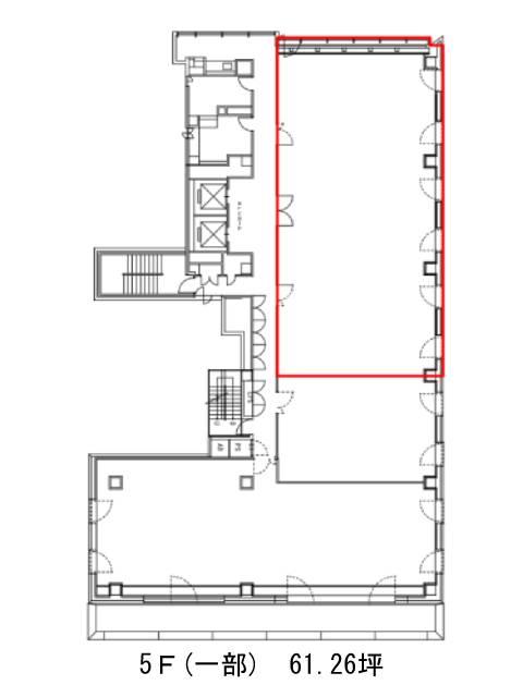
5階は現在募集がありません
住友生命西新橋ビル 5階
物件概要
住友生命西新橋ビルのテナント募集中区画
現在、空室がございません。
アクセス
住友生命西新橋ビルの物件情報
住友生命西新橋ビル(港区西新橋)は内幸町駅(A4a番出口)から徒歩2分の賃貸オフィスです。地上10階建てで竣工2001年の物件ということもあり、上層階からの眺望は良好で建物自体も比較的綺麗です。外観は前面ガラス張りでミラーウォールが大変美しく、とてもスタイリッシュな印象があります。エントランスホールやエレベーターホールは広々としており、とても清潔感があります。ビル内にはOAフロアが備えられており、トイレは男女別となっております。また周辺にはコンビニや飲食店、郵便局、銀行があるためとても利便性が高いです。住友生命西新橋ビルは内幸町駅(A4a番出口)の他に虎ノ門駅(9番出口)徒歩4分、霞ケ関駅(C3番出口)徒歩6分で利用も可能です。

