2階は現在募集がありません
西新橋光和ビル 2階
物件概要
西新橋光和ビルのテナント募集中区画
現在、空室がございません。
アクセス
西新橋光和ビルの物件情報
西新橋光和ビル(港区西新橋)は内幸町駅(A4a番出口)から徒歩3分の賃貸オフィスです。外堀通り沿いに佇む地上9階建ての物件。前面は開放感があります。
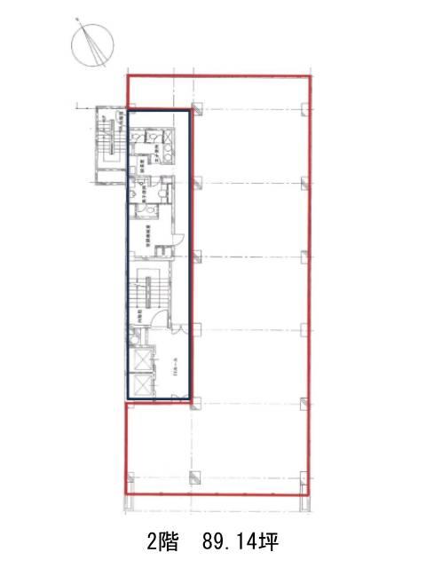
基準階は約90坪。コの字型の無柱空間は、デスクの配置や会議室のレイアウトにも柔軟に対応しやすく、チームの働き方に合わせた多様なオフィス設計が可能です。水回りはすべて貸室外にまとめられており、専有スペースを最大限に有効活用できるのも嬉しいポイント。
また、機械警備によるセキュリティやOAフロア、駐車場の完備など、基本的なスペックもしっかり。
周辺には飲食店やコンビニエンスストアが充実しています。西新橋光和ビルは内幸町駅(A4a番出口)の他に虎ノ門駅(9番出口)徒歩4分、霞ケ関駅(C3番出口)徒歩5分で利用も可能です。

