7階は現在募集がありません
PMO西新橋 7階
物件概要
PMO西新橋のテナント募集中区画
現在、空室がございません。
アクセス
PMO西新橋の物件情報
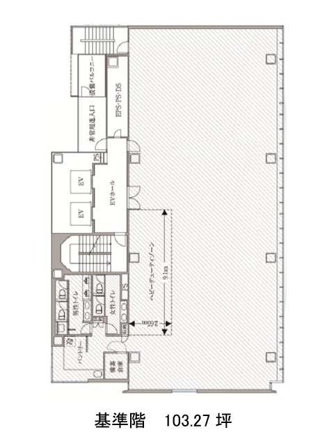
PMO西新橋(港区西新橋)は内幸町駅(A3番出口)から徒歩5分の賃貸オフィスです。モノトーンの外壁とミラーガラスで、スタイリッシュな外観のビルです。前面に区立公園がありオフィスからも借景をお楽しみ頂けるでしょう。EV含む3箇所でのICカードセキュリティの他、不在時の室内人感センサーで安心の警備体制。室内は2800㎜の開放感ある無柱空間です。OAフロア・一部ヘビーデューティーゾーンとなります。EV2基・駐車場7台分・個別空調といった設備があります。屋上は入居者専用の憩いの場所として開放され、ベンチや自動販売機が置かれています。PMO西新橋は内幸町駅(A3番出口)の他に虎ノ門ヒルズ駅(B4番出口)徒歩6分、虎ノ門駅(9番出口)徒歩7分で利用も可能です。

