5階は現在募集がありません
REVZO虎ノ門 5階
物件概要
REVZO虎ノ門のテナント募集中区画
現在、空室がございません。
アクセス
REVZO虎ノ門の物件情報
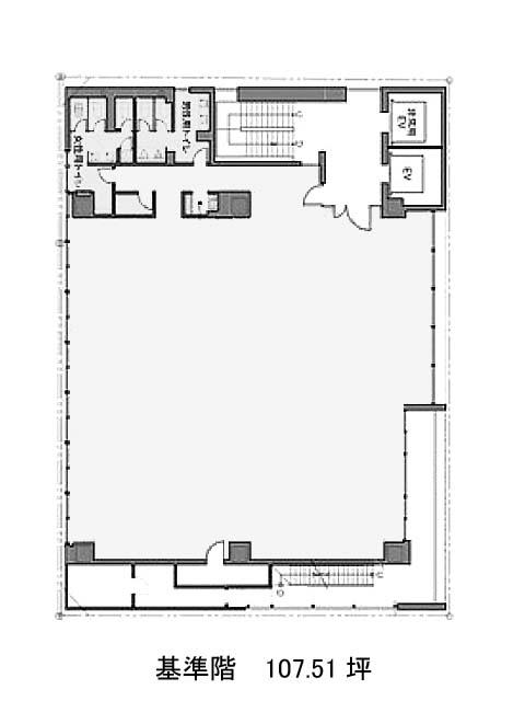
REVZO虎ノ門(港区西新橋)は虎ノ門駅(9番出口)から徒歩3分の賃貸オフィスです。白い壁面と大きなミラーガラスがすっきりとした外観の築浅ビルです。室内は無柱空間でオフィス家具のレイアウトがしやすいでしょう。フロアは一部がヘビーデューティーゾーンのOAフロアとなります。EV2基・男女別トイレ・2箇所の機械警備・駐車場11台・パントリー・個別空調といった設備が揃います。周囲はオフィスビルが建ち並ぶエリアですが無機質な印象は無く、壁面緑化されたビルがあったり道路沿いの植栽が多く植えられたりしています。REVZO虎ノ門は虎ノ門駅(9番出口)の他に内幸町駅(A4a番出口)徒歩3分、霞ケ関駅(C3番出口)徒歩5分で利用も可能です。

