3階は現在募集がありません
銀泉西新橋ビル 3階
物件概要
銀泉西新橋ビルのテナント募集中区画
現在、空室がございません。
アクセス
銀泉西新橋ビルの物件情報
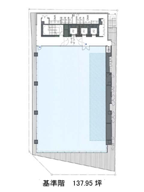
銀泉西新橋ビル(港区西新橋)は内幸町駅(A3番出口)から徒歩1分の賃貸オフィスです。地上12階建て2022年竣工、鉄骨造 一部鉄筋コンクリート造の物件で、建物自体とても綺麗です。外観は落ち着いた色合いをしており、スタイリッシュな印象があります。基準階は約137坪あり、室内は長方形の整形オフィス、無柱空間のため効率の良いレイアウトが組めそうです。ビル内にはOAフロアが備えられており、トイレは男女別となっております。また周辺にはコンビニや飲食店、銀行があるためとても利便性が高いです。銀泉西新橋ビルは内幸町駅(A3番出口)の他に新橋駅(8番出口)徒歩4分、虎ノ門駅(9番出口)徒歩6分で利用も可能です。

