3階 3Aは現在募集がありません
柏屋ビル 3階 3A
物件概要
柏屋ビルのテナント募集中区画
現在、空室がございません。
アクセス
柏屋ビルの物件情報
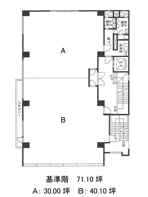
柏屋ビル(港区西新橋)は虎ノ門駅(9番出口)から徒歩3分の賃貸オフィスです。地上9階 地下1階建ての鉄骨鉄筋コンクリート造の物件です。エントランスホールやエレベーターホールはとても落ち着いた空間となっております。基準階は約70坪あり、室内は整形のオフィスのため、効率の良いレイアウトが組めそうです。ビル内にはOAフロアが備えられており、トイレは男女別となっております。セキュリティは機械警備を導入しているため、安心です。また周辺にはコンビニや飲食店、郵便局、銀行などがあるためとても利便性が高いです。柏屋ビルは虎ノ門駅(9番出口)の他に内幸町駅(A4a番出口)徒歩4分、霞ケ関駅(C3番出口)徒歩4分で利用も可能です。

