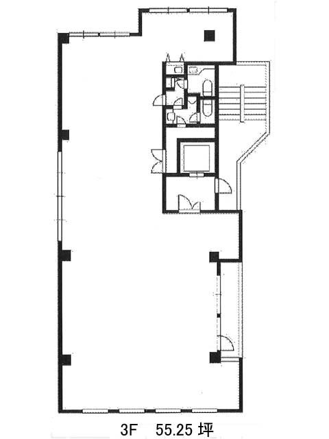
3階は現在募集がありません
西麻布広瀬ビル 3階
物件概要
西麻布広瀬ビルのテナント募集中区画
現在、空室がございません。
アクセス
西麻布広瀬ビルの物件情報
西麻布広瀬ビル(港区西麻布)は六本木駅(1c番出口)から徒歩8分の賃貸オフィスです。西麻布広瀬ビルは六本木駅(1c番出口)の他に広尾駅(3番出口)徒歩10分、乃木坂駅(5番出口)徒歩10分で利用も可能です。

