2階は現在募集がありません
NISHIAZABU395 2階
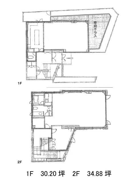
物件概要
NISHIAZABU395のテナント募集中区画
現在、空室がございません。
アクセス
NISHIAZABU395の物件情報
NISHIAZABU395(港区西麻布)は広尾駅(3番出口)から徒歩6分の賃貸オフィスです。NISHIAZABU395は広尾駅(3番出口)の他に六本木駅(出口)徒歩12分、麻布十番駅(7番出口)徒歩15分で利用も可能です。

