3階は現在募集がありません
アイザック東麻布ビル 3階
物件概要
アイザック東麻布ビルのテナント募集中区画
現在、空室がございません。
アクセス
アイザック東麻布ビルの物件情報
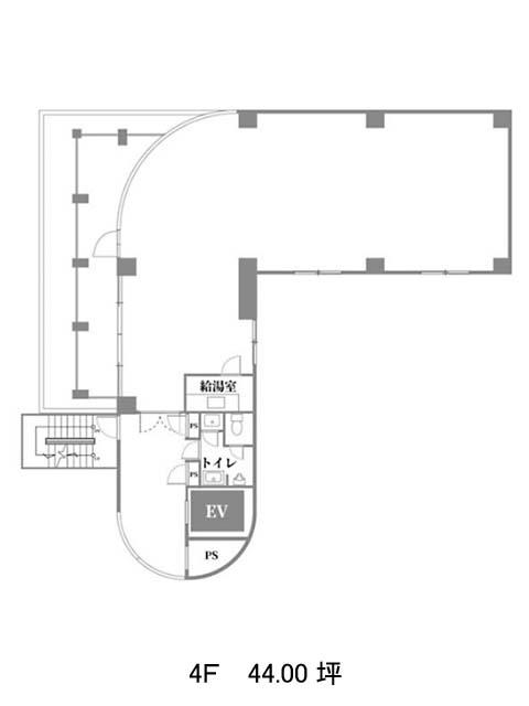
アイザック東麻布ビル(港区東麻布)は麻布十番駅(6番出口)から徒歩3分の賃貸オフィスです。1992年竣工、SRC造地上4階地下1階建のビルです。一部丸みを帯びた外壁が特徴的で、デザイン性の高い外観をしています。すっきりとしたグレーのタイル貼りをしています。前面道路側に開けた大きな窓から、十分な採光がとれるでしょう。EV・駐車場・個別空調・給湯室・OAフロア・貸室外の男女別トイレといった設備仕様があり、セキュリティとして機械警備が導入されています。周辺は低層階の分譲マンションやビルが建ち、落ち着いた雰囲気のエリアとなります。アイザック東麻布ビルは麻布十番駅(6番出口)の他に赤羽橋駅(中之橋口)徒歩9分、六本木一丁目駅(2番出口)徒歩12分で利用も可能です。

