地下1階は現在募集がありません
青山NSビル 地下1階
物件概要
青山NSビルのテナント募集中区画
現在、空室がございません。
アクセス
青山NSビルの物件情報
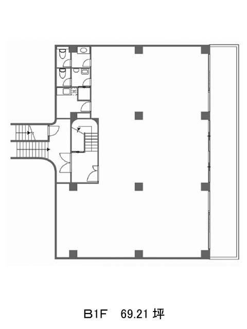
青山NSビル(港区南青山)は青山一丁目駅(5番出口)から徒歩5分の賃貸オフィスです。白いタイル貼りですっきりとした外観のビルです。1985年築ですが新耐震基準に適合しています。間取りは1フロアのすっきりとした長方形で、共用部が一箇所に集中しています。設備として、駐車場・個別空調・貸室内の男女別トイレがあり、B1階は事務所・店舗としての利用が可能です。OAフロアを導入しており、パソコンの配線がしやすいでしょう。周辺は住宅や低層の建物が多く、都心でありながら落ち着いた雰囲気のエリアとなります。青山NSビルは青山一丁目駅(5番出口)の他に外苑前駅(4a番出口)徒歩5分、乃木坂駅(4番出口)徒歩13分で利用も可能です。

