4階は現在募集がありません
ヒューリック南青山ビル 4階
物件概要
ヒューリック南青山ビルのテナント募集中区画
現在、空室がございません。
アクセス
ヒューリック南青山ビルの物件情報
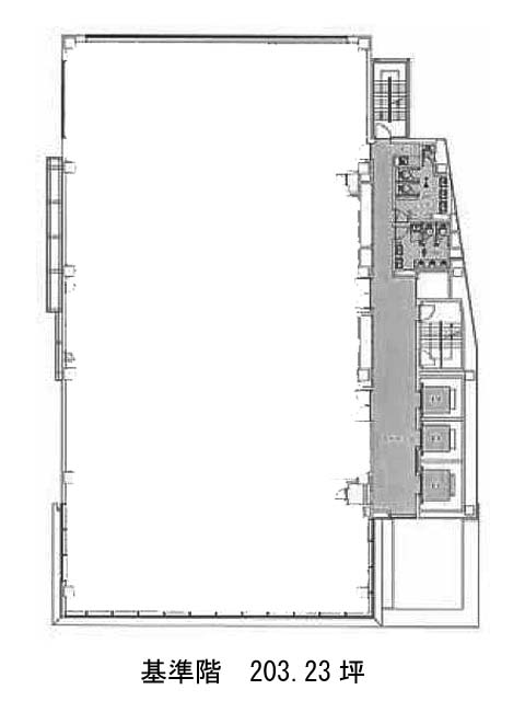
ヒューリック南青山ビル(港区南青山)は外苑前駅(1a番出口)から徒歩2分の賃貸オフィスです。2014年竣工の物件ということもあり、建物自体が綺麗です。外観は前面ガラス張りになっており、とても美しく視認性が高い印象があります。エントランスホールやエレベーターホールは清潔感があり、高級感も感じられます。またビルの1階にはスーパーが入っているため、休憩時などに活用しやすいでしょう。室内は、基準階が約200坪あり、長方形の整形オフィスのため、効率の良いレイアウトが組めそうです。ビル内にはOAフロアが備えられており、トイレは男女別となっております。ヒューリック南青山ビルは外苑前駅(1a番出口)の他に表参道駅(A4番出口)徒歩9分、青山一丁目駅(1番出口)徒歩10分で利用も可能です。

